Jasa Desain Rumah & Gambar Pengajuan IMB
3d Rencana Renovasi
Pekerjaan renovasi rumah membutuhkan perencanaan yang matang seperti halnya perencanaan rumah baru. Pada pekerjaan ini klien kami di Jakarta Timur membutuhkan jasa arsitek untuk merenovasi rumahnya yang seluas 90 meter persegi untuk penambahan kamar dan ruang makan. Perluasan diberikan dibagian kiri bangunan dan bagian depan.
3d Layout Rumah
Bagian kiri bangunan mendapatkan perluasan di area dapur sekaligus penambahan ruang makan agar keluarga dapat kumpul bersama ketika makan pagi ataupun makan malam. Selain itu dibagian kiri depan juga ditempatkan sebuah kamar tidur. Penambahan kamar ini biasa dibutuhkan ketika anak sudah mulai beranjak dewasa. Kamar bagian depan memiliki jendela langsung kebagian depan rumah.
Denah Rencana Renovasi
Selain itu didenah terlihat pada kamar tidur utama ditempatkan sebuah kamar mandi didalam kamar. Ruang tamu juga maju beberapa meter dan dibuat menyatu dengan ruang keluarga. Dibelakang ruang keluarga terdapat mushola keluarga untuk keperluan ibadah dan mengaji sehari-hari.
Potongan Rencana Renovasi
Potongan Rencana Renovasi
Potongan Rencana Renovasi
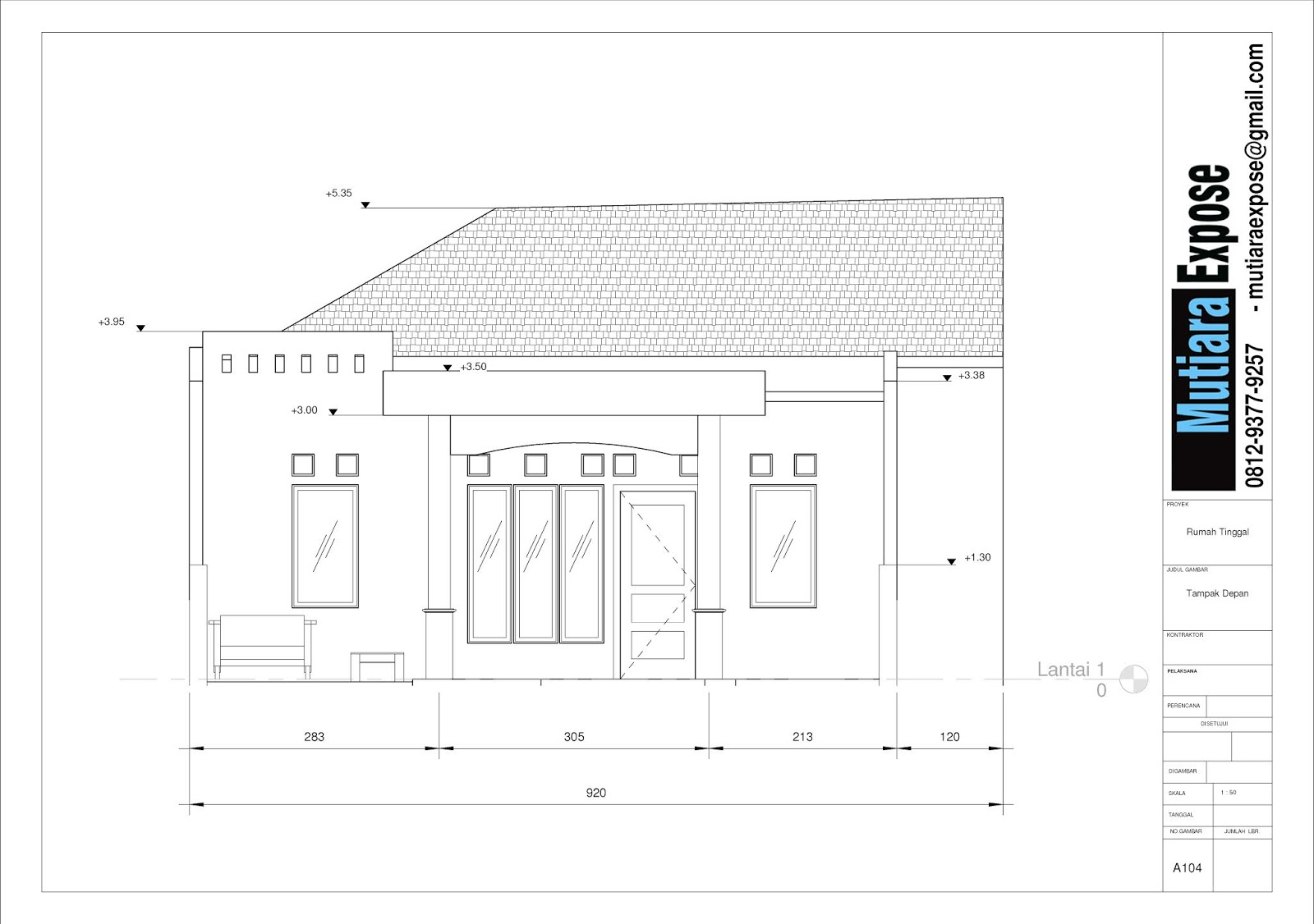
Pada gambar potongan terlihat bagian teras diberikan sebuah kanopi teduhan untuk menerima tamu atau santai diteras. Selain itu keberadaan kanopi dan tiang juga dapat mempercantik tampilan depan rumah. Dipadukan dengan lapisan batu alam, bagian depan terlihat memiliki desain yang manis serta nyaman untuk ditempati.
Tampak Samping Rencana Renovasi
Tampak Samping Rencana Renovasi
Tampak Samping Rencana Renovasi
Tampak Depan Rencana Renovasi
Selain gambar desain perencanaan bangunan, klien kami juga membutuhkan gambar lengkap sebagai syarat Ijin Mendirikan Bangunan atau IMB. Gambar IMB perlu diatur khusus agar memenuhi syarat kelengkapan pengajuan IMB. Gambar-gambar hasil disain kami diatur dengan menggunakan format IMB yang disyaratkan agar pengguna dapat memenuhi syarat pengajuan dan pembangunan dapat dimulai setelah memiliki ijin.
Gambar IMB
Persyaratan yang umumnya dibutuhkan dalam mengajukan IMB antara lain :
- Gambar Rencana Denah, Tampak, Potongan
- Gambar Rencana Area Hijau, GSB, GSJ & KDB
- Gambar Instalasi Air Buangan
- Gambar Rencana Septic Tank & Sumur Resapan
- Gambar Rencana Pagar
Dalam pengajuan persyaratan IMB gambar-gambar tersebut perlu dilengkapi dan dipastikan sesuai dengan ketentuan daerah setempat berdasarkan posisi bangunan. Selain itu terdapat KRK yang dapat menjadi acuan ukuran efektif kavling besert GSB & KDB nya. Jika pengajuan gambar tidak sesuai dengan KRK maka gambar perlu direvisi untuk diajukan kembali.






















































