Gambar Konstruksi Reklame Ruko, Mini Market, Apotik
Hubungi kami untuk kebutuhan proyek anda
Mutiara Expose Desain & Konstruksi
Kontak / Whatsapp : 0812-9377-9257 ; 0815-1066-5204 ; 0819-3299-3599
Email : mutiaraexpose@gmail.com
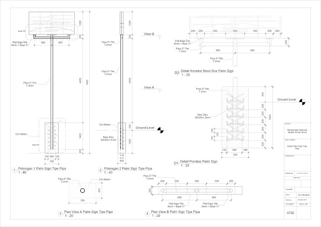
Pembuatan gambar rencana konstruksi tiang reklame. Gambar mulai dari pondasi, struktur rangka hingga penempatan titik lampu untuk keperluan reklame ruko.
Struktur utama berupa tiang pipa 4" s.d 6" untuk menyangga beban reklame dan menyalurkannya ke pondasi cor dengan perkuatan besi tulangan siku. Kerangka besi 2" digunakan untuk koneksi pengaku dibagian tengah dan atas. Konstruksi semacam ini juga banyak digunakan untuk signage SPBU, Rest Area, Restoran, Cafe, dsb.
Konstruksi tiang dapat dibuat mengekspose bentuk tiang pipa atau ditutup dengan menggunakan ACP (Alumunium Composit Panel). ACP mulai banyak digunakan saat ini karena kemampuannya membentuk desain yang kita inginkan. Papan ACP tersedia dalam berbagai macam warna serta memiliki kemudahan untuk dibentuk. Karena itu papan ACP sangat diminati karena fleksibilitasnya dalam mengikuti bentuk dan desain. Daya tahan ACP pun cukup baik. Dengan pemasangan yang baik, ACP dapat bertahan hingga belasan tahun. Diantara merek ACP yang cukup ternama di Indonesia antara lain : Alucopan, ACP seven, Alucobond, Alcotex, Alpolic, dsb.
Jasa gambar untuk berbagai macam pekerjaan proyek, Sipil, Baja, konstruksi bangunan Ruko, Gudang, Perumahan.
Desain dan konstruksi untuk kebutuhan signage Neon Box, ACP, Reklame. Pembuatan desain dengan material ACP, Konstruksi tiang & besi hollow, huruf timbul, stainless dll.
Melayani pesanan gambar dari seluruh Indonesia, lingkup pekerjaan kami untuk Pandeglang Banten, Bandar Lampung, Bengkulu Utara, Purworejo, Semarang, Wonosari, Mamuju, Makale, Bontosunggu, Mamasa, Kolaka Utara, Gianyar Bali, Amlapura.





